Skip to content
Hotline : 0987 094 568
Hotline : 0987 094 568
Trang chủ
Dịch vụ
Antruss
SmartHome
Smartruss
Thư viện ảnh
Dự án
Liên hệ
Map
thông tin nhóm sản phẩm antruss
Nhóm sản phẩm C75- C100- TS40- TS61
Biên dạng
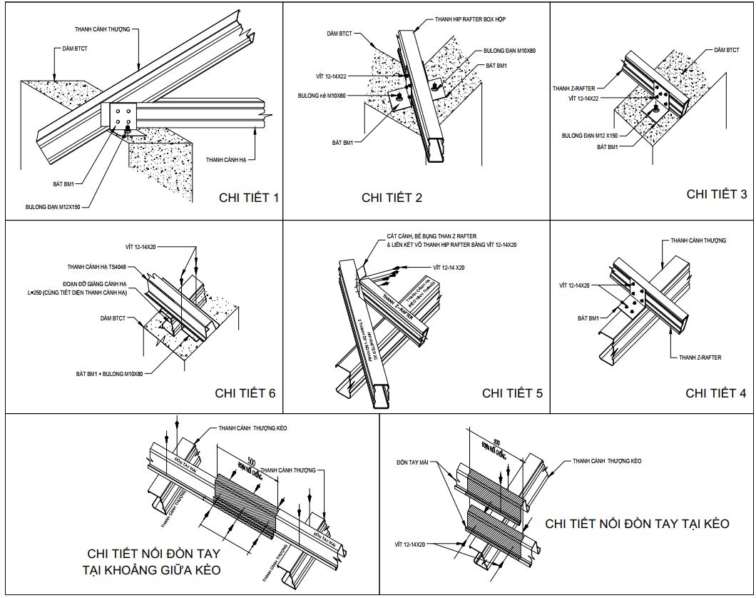
Các chi tiết liên kết điển hình Antruss
Các chi tiết liên kết điển hình Antruss
Các chi tiết liên kết điển hình Antruss
Các chi tiết liên kết điển hình Antruss
Trang chủ
Dịch vụ
Antruss
SmartHome
Smartruss
Thư viện ảnh
Dự án
Liên hệ
Map